Mieszkanie ul. Klonowa
Klonowa, Trzebnica, dolnośląskie
- 769 212 zł
- 83,61 m²
- 9 200 zł/m²
Biuro Sprzedaży
Skontaktuj się
Mieszkanie ul. Klonowa
Klonowa, Trzebnica, dolnośląskie
zaktualizowane:
6 sierpnia 2025
Mieszkanie ul. Klonowa
Inwestycja: Osiedle Czereśniowe
Zaktualizowane: 6 sierpnia 2025
769 212 zł 83,61 m² 9 200 zł/m²
oddana do użytku
1/4
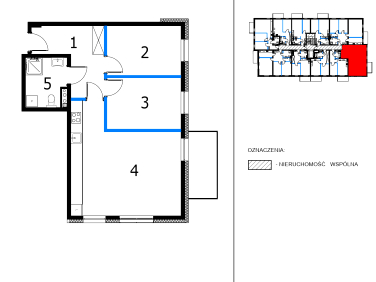
4
garaż
deweloperski
Zobacz na mapie
Stan inwestycji:
oddana do użytkuPiętro:
1/4Liczba pokoi:
4Miejsce postojowe:
garażStan mieszkania:
deweloperskiSzczegóły ogłoszenia
- Typ oferty: mieszkanie na sprzedaż
- Cena: 769 212 zł (9 200 zł/m²)
- Termin realizacji: grudzień 2025, oddana do użytku
- Status oferty: dostępne
- Rynek: pierwotny (oferta dewelopera)
- Charakterystyka mieszkania: 83,61 m², 4 pokoje, 2 łazienki; stan: deweloperski
- Budynek: blok mieszkalny
- winda
- Rozkład mieszkania: piętro 1/4, jednopoziomowe
- Powierzchnia dodatkowa: ogródek
- Kuchnia: aneks kuchenny
- Media: klimatyzacja
- Miejsce/a postojowe: w garażu wielostanowiskowym; garaż w bryle budynku
- Źródło: oferta dewelopera: "KLIWO" Usługi Ogólnobudowlane Wojciech Klisowski, zaktualizowane: 06.08.2025
- sygnatura ogłoszenia: B-1-2
Lokalizacja
- Inwestycja: Osiedle Czereśniowe
- Adres: Klonowa, Trzebnica, dolnośląskie
- Otoczenie: obrzeża miasta, osiedle bloków mieszkalnych, tereny zielone i rekreacyjne
- Na terenie inwestycji: plac zabaw
- W pobliżu żłobek (999m), przedszkole (999m), siłownia (999m), basen (999m), park (50m), plac zabaw (30m), las, góry
Opis nieruchomości
ZAKOŃCZENIE BUDOWY GRUDZIEŃ 2025R.

Inwestycja realizowana przez:
"KLIWO" Usługi Ogólnobudowlane Wojciech Klisowski
Biuro Sprzedaży
ul. Janusza Korczaka 2a
Trzebnica 55-100
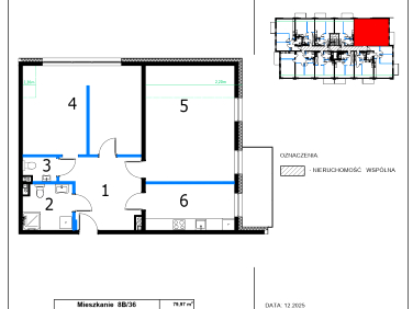
| MieszkanieB-2-3 | 63,01 m² | 10 000 zł/m² | 2/4 | 3 | 630 100 zł |
| Mieszkanie | ||||
|
||||
| B-2-3 |
| MieszkanieB-3-2 | 79,97 m² | 9 500 zł/m² | 3/4 | 3 | 759 715 zł |
| Mieszkanie | ||||
|
||||
| B-3-2 |
| MieszkanieB-3-7 | 81,11 m² | 9 500 zł/m² | 3/4 | 3 | 770 545 zł |
| Mieszkanie | ||||
|
||||
| B-3-7 |
| MieszkanieB-0-6 | 68,15 m² | 10 000 zł/m² | parter/4 | 3 | 681 500 zł |
| Mieszkanie | ||||
|
||||
| B-0-6 |
| Mieszkanie8C/54 | 71,18 m² | 9 900 zł/m² | 4/5 | 3 | 704 682 zł |
| Mieszkanie | ||||
|
||||
| 8C/54 |
| Mieszkanie8C/43 | 75,59 m² | 9 900 zł/m² | 3/5 | 4 | 748 341 zł |
| Mieszkanie | ||||
|
||||
| 8C/43 |
| Mieszkanie8C/37 | 70,09 m² | 9 900 zł/m² | 3/5 | 4 | 693 891 zł |
| Mieszkanie | ||||
|
||||
| 8C/37 |
| Mieszkanie8C/25 | 69,70 m² | 9 900 zł/m² | 2/5 | 4 | 690 030 zł |
| Mieszkanie | ||||
|
||||
| 8C/25 |
| Mieszkanie8C/20 | 62,38 m² | 10 100 zł/m² | 1/5 | 3 | 630 038 zł |
| Mieszkanie | ||||
|
||||
| 8C/20 |
| Mieszkanie8C/19 | 75,49 m² | 9 900 zł/m² | 1/5 | 4 | 747 351 zł |
| Mieszkanie | ||||
|
||||
| 8C/19 |
Deweloper deklaruje w tej inwestycji 40 mieszkań. Dowiedz się więcej
Biuro Sprzedaży
799 374...
799 374 844










